Sizzling, sambal pedas hot serviced apartment launched today at Bandar Kinrara, Puchong!
PropCafe team is again fortunately able to be in the heat of the moment, (ok this may sound wrong), to present you exclusive coverage of cili hot hot launch!
The Location
Bandar Kinrara, need no further introduction, a well located township developed by I&P neighboring, Bukit Jalil, Bandar Sunway and Seri Kembangan.

Developer
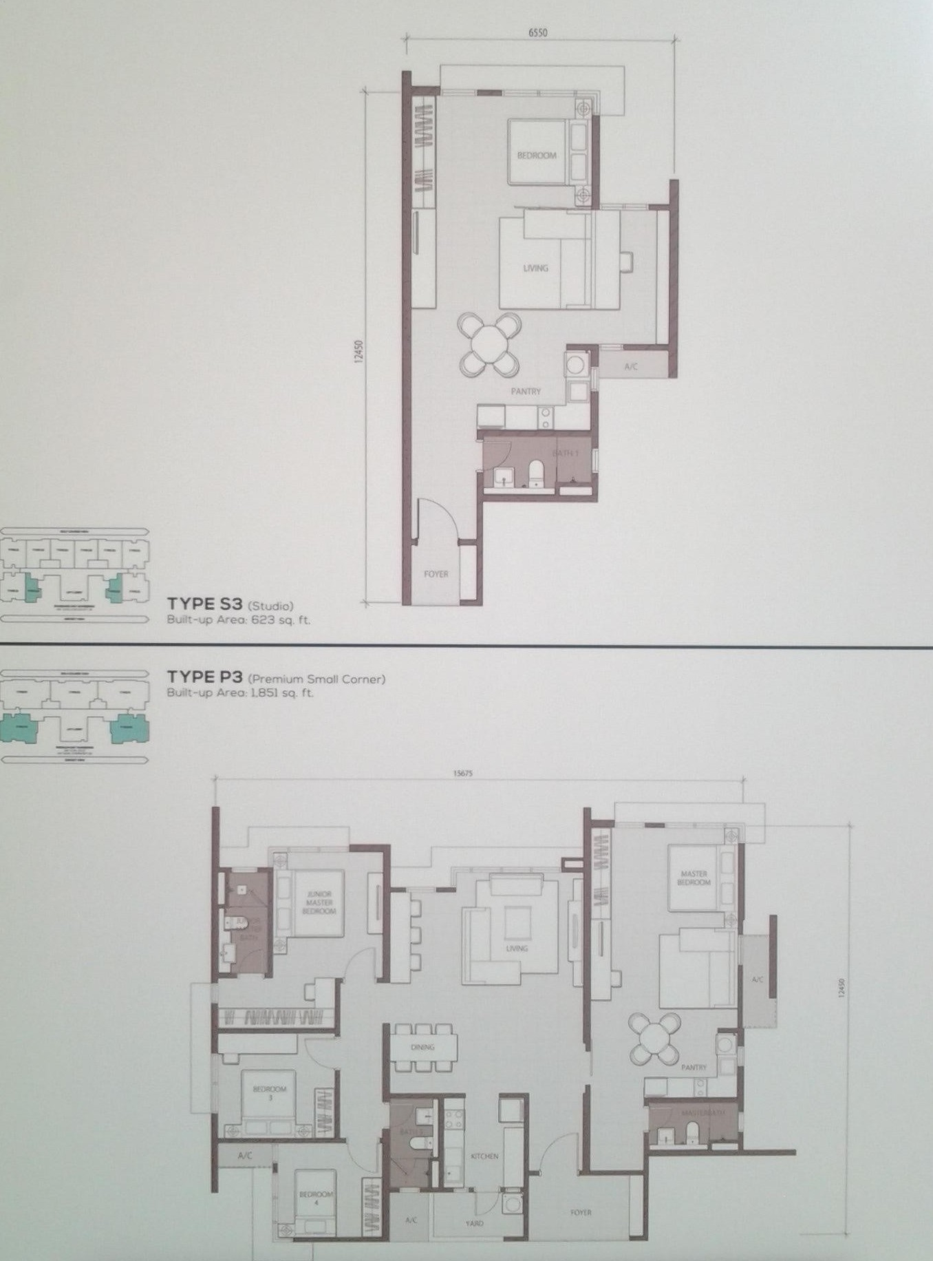
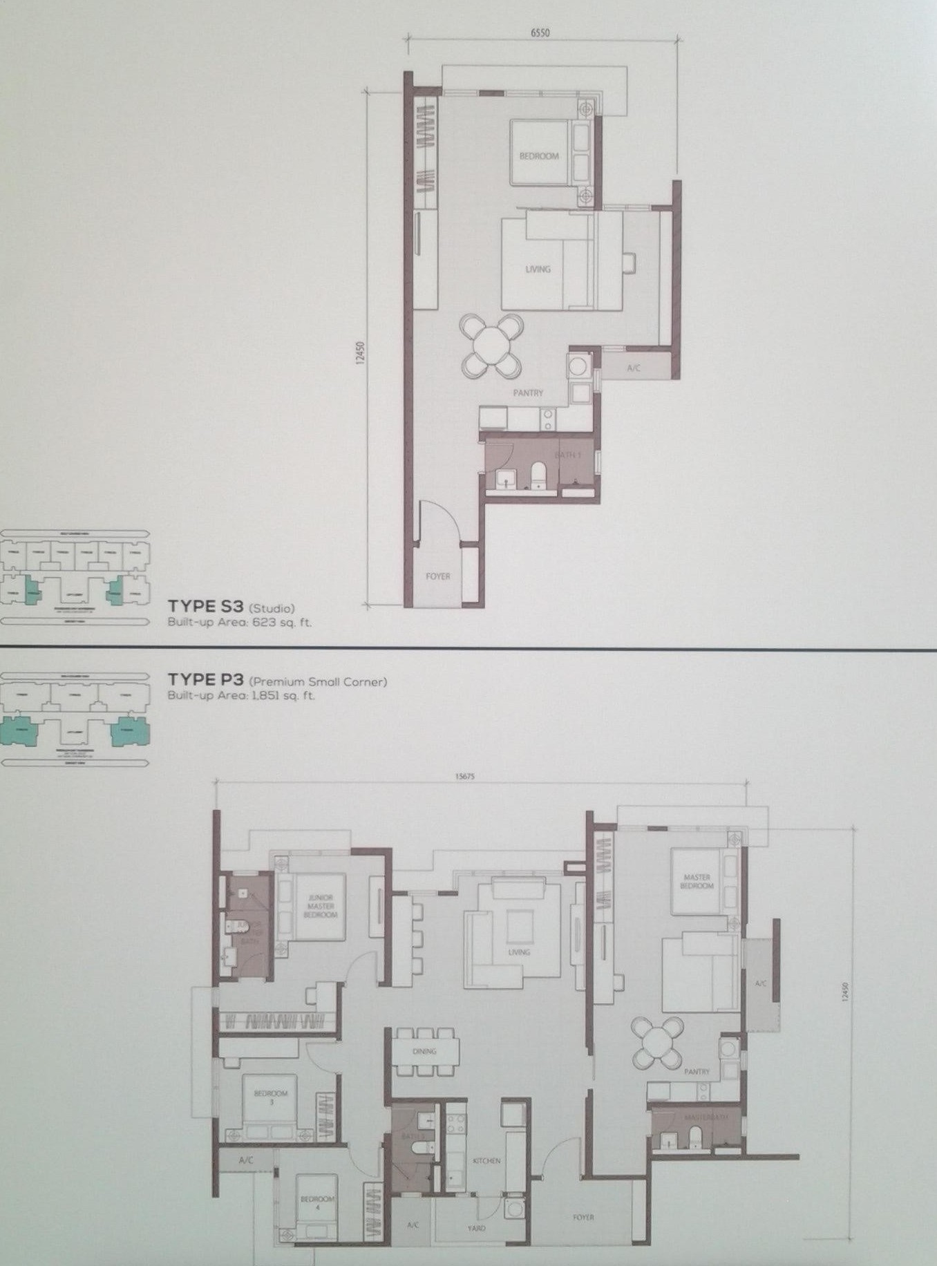
8 Kinrara is developed by I&P Group. 8 Kinrara consists of 236 units of serviced apartments with build-up areas ranging from 623 sq ft to 2,483 sq ft priced between RM378,888 to RM1,544,888.
This is a rare integrated development from I&P Group, that excels in building NON GATED NON GUARDED landed home.
Priced average from RM600psf and the serviced apartment is located next to Giant Bandar Kinrara.
The unique selling point would be commercials underneath the serviced apartments, Giant and proposed linked walk way to LRT.
The developer expects the project to be well received; therefore units are sold via ballot, buyers are required to prepare RM30,000 for a chance own a piece of 8 Kinrara.
Typical unit layout
Compare this to another condo project by I&P at Seri Petaling, 8 Kinrara wins hands down.

The most prized unit is the studio unit, only 40odds units available and they are all sold!
Sticker board updates
Other information
Let the pictures tell you the story.

After thought
It has come to a point where RM600psf at Puchong is acceptable to the local folks.
At this location and by the top 10 developer, this asking price by I&P is actually quite palatable.
Therefore this writer expects 8 Kinrara to do well.
Despite the recent BNM efforts to clamp down household debts, the buying fever is seen here unlikely to reduce if a project a priced correctly! In this case, the studio at 8 Kinrara.
Credits
Pictures are courtesy of Puchong Taikor Mr Ng : )













What about the commercial? Is it for sale? Already sold out? Nothing much mentioned about the commercial unit …
Hi mybenz,
No, they will be sold separately, in future
When govt and public question investors on their contribution on unreacheable property prices in klangvalley, investor should point back govr on its LRT n MRT as the major culprit…keke
[…] 8 Kinrara […]