HYVE Soho Suites@Transcend 9 to 5.
Another highrise project in Cyberjaya! It first caught my attention because of its façade, I then found that the location is pretty good within Cyberjaya. After the sales person told me the pricing and package, wow, as an investor, it definitely will make you stay to find out even more about this project.
The concept video is available: http://www.hyve.com.my/video.php
From the developer
The project called it as SOHO Suites development which consists of two towers (A &B) and limited edition units at the side of the podium (low rise) called Technosuites (40 units only). I like the “GLASSY” design and the lowrise technosuite staggered concept is like those lake facing apartments in Queenstown New Zealand!
This development will be constructed at the small sloppy land and offered 768 units with different layouts. Tower 2 will be launched in later stage with indication of 10% increment in term of pricing. The two towers are NS facing, so orientation wise is not an issue. But, it is not the case for technosuite which will suffer the HEAT in the evening! West Facing Opps!
All units come with at least 1 carpark, 580sf and above will be given TWO! I will skip all those facilities description as it is pretty standard nowadays to have all these. Since the landscape is not SEKSAN (:P), I won’t expect it to be very different from the rest of the mid-cost development.
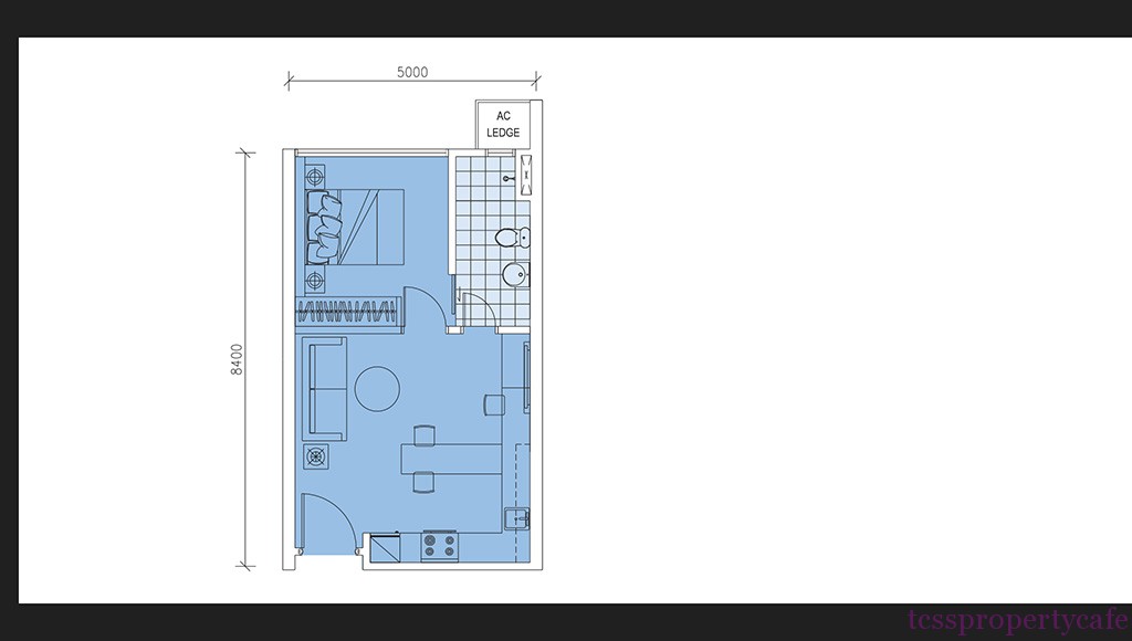
450sf & 510sf (1 bedroom) Layout and showroom
![]()
580sf (1+1) Layout and Showroom

Don’t be misled by the showroom or photo above, many of the specification are different from showroom in term of material. Kitchen cabinet only restricted to 7ft cabinet. One aircond. hood and hob are given. Tiles are different from the show unit. The are giving the tiles from Niro. See the material sample below.
The guru who champion in cyberjaya rental market points me to look into studio as the studio rental yield in Cyberjaya is pretty attractive at the moment. The domain 565sf studio high floor fully furnished unit is getting around RM1,500-RM1700 pm. The 2 bedrooms unit in cyberjaya doesn’t seem can command higher yield as it may only get additional one or two hundreds from RM1500. The call is yours!
It is important to highlight that the second room in those 1+1 units do not come with window. One of the taikors asked me, is it livable? I will let those students to answer. For me, it will be too luxury to leave it as study room or store room with this small size layout.
Technosuites actually catch my attention (see first photo of this thread), it is pretty unique in service apartment with the size of 850sf (160sf lanai). The unit is actually at the side of the podium or carpark level! Well, if you see the layout attached below, technosuite owner will not suffer the problem of carrying goods from carpark then lift to reach his/her unit. The tenant/owner will park their cars right outside the unit i.e. behind the unit. Go through the door which will be controlled by the access card to immediately reach the corridor and your unit(see cirles in the pic below). The corridor after the access control is only shared by 4 units for each wing. It is quite an USP. I understand that Riana Green East also has similar concept but the difference is the HYVE has a closed up corridor to block and separate the units and carpark, not to say it has the access card to control the security. Also, if one is creative enough, the lanai can actually turn into a bedroom. One can argue about the strata title act on the non-changeable façade. But if you use easily detachable material like glass wall to cover two side (front and side), you will be safe to get extra room as I have seen it in MK condo. Balcony no, Lanai yes. Can this type demand higher rental or attract more subsales young executive? No one know at the moment as it is new concept. Student market’s taikor told me: NO DIFFERENT in rental yield! LOL.
The development is at Jalan Impact, the land besides Shaftsbury SOHO development which slightly away from the area where all student apartments and condominiums in Cyberjaya. The left hand side of this development is the nice building called International Multilateral Partnership Against Cyber Threats (IMPACT).
This inner road of Jalan Impact is very quiet and secluded. I personally like it because it is away from those ugly & colourful condominiums with large student crowds (Well, it may turn out to be student site too as Shaftsbury Soho has more than 700 units available for rent soon!). If shaftsbury Soho is attracting more knowledge workers with miniority students (due to non-walkable distance to Universities), then it will be a nice knowledge worker’s enclave, which I believe can sell at premium compares to other “student hostel” area. Question is, would knowledge workers start to look for ownstay or rent a unit in cyberjaya instead of staying outside cyberjaya after all the boom stories created recently about Cyberjaya (if one always attend property seminar ll know what I mean).
Bird Eye view of the HYVE
North View – Shafsbury Facing. With the podium of HYVE, I believe after 5 or 6 floors, the units should be clear from shaftsbury carpark level.
South View – Pool Facing with nice green behind IMPACT.
West View – Technosuite’s View which facing the opposite Cottage Walk Shoplots (where all eateries located beside MDec). There is a green lung to separate Technosuite and the shop lots (see pic below). The underneath of the green lung is in fact the GAS PIPES :P. Govt will not allow anyone to do anything on the green.
Walkable distance to Shaftsbury retail lots? Although HYVE is just right beside Shaftsbury SOHO blocks, residents of HYVE may need to walk a big round to reach Shaftsbury retail area (which is at the back of Shaftsbury SOHO) . Shaftsbury SOHO residents have private bridge to reach the retail blocks but I doubt it will open for public to go through Shaftsbury SOHO blocks. Unless one is used to walk long distance i.e. near 2km return, car seems like necessary for HYVE residents. This development I guess will attract more knowledge workers than students.
Pricing and Packages
The one bedroom price starts from affordable RM215,000 before the rebate of 7% and additional 3% if one signs the SPA within 2 weeks. If one decides not to take their DIBS scheme, the price can go down additional 3.5%. Do you math here, you will see it is very affordable, with this sort of concept and existing studio rental market. Every 5 to 6 floor, there will be around 15k jump (e.g. Tower A shaftbury facing 6th floor 220k, 7th floor 236k)
Of course, the price above is for those facing Shaftsbury. If you want to have Pool cum Green View, you need to top up another 25k to 30k which is really a big premium from my point of view. However, it depends on your purpose of purchase. If you intend to rent out to student or young executives there, forget about nice view as the rental will not justify the premium that you pay. Ownstay, Yes. Funny enough, all the good facing are taken and the pricing are going around 240k up before rebates from low floor.
The technosuites 850sf costs 364k up. 520sf type (1+1) only available in Tower A facing shaftbury, which price starts from 255k. 580sf (1+1) and 770sf (2+1) are selling from 280k and 420k (all before rebates) respectively. Again, premium view command additional 20-30k. Investors should know whether premium is worth it for this sort of development. Use your experience to decide! Ownstayer, please go to the site and see the view before you sign the dotted line.
Title Issue!
This is mind blogging! I visited the site and saw the signboard. Opppppps! Even though this project follows schedule H, It seems like it is almost office suites! I am not the fan of SOFO, SOVO or whatever that without “H” because it is technically an OFFICE and not for residential according to the title. I can accept SOHO because you can reside there LEGALLY but sorry, not those funny SOFO/SOVOs. Heard that after certain level it will be SOHO titles, the rest would be office title. I was shocked that this development is positioned as SOHO but only 200+ units are SOHO and the rest is OFFICE including the whole Block B! See the signage below.
Some of the investors whom I know actually do not mind but I definitely not into it as I do not like to have any legal implication when I use or sell the unit in future. Please don’t take my words, it will be fairer for developer to have a chance to explain all the potential issues and implication on the residential use of office suites title.
Developer
KimLun is a listed company from Bursa Main Board. They are experience builder which established more than 20 years (mainly as main constructor for other developer) but it seems like the first project from them as a developer. You can find their financial in their website which is quite healthy.
Cyberjaya Highrise Supply
Many claimed Cyberjaya is the heaven for rental market as it has more than 15k student population (yes, MMU itself already near to 9k, not to say LKW, Medical School, future SEGI, future Islamic Uni, future Computing Uni, future Heriotwatt at Putrajaya, future Xia Men Uni near dengkil etc).
I am not the guru in Cyberjaya. I am just doing my simple math here. The existing apartments and condominiums are offering around 3700+ units in Cyberjaya (added up from Domain 1,2,3 & 4, Cyberia Crestcent 1 &2, Cyberia Smart Home, D’ Melor, Garden View, Cyber Height Villa, and Cyberview Garden Villa). This 3.7k units are serving 15k student (ok not all students stay here so + some knowledge workers). It seems like the market is there to do rental market!!!
But but but…..does the investor know the future supplies of apartment/condominium in Cyberjaya over next 3 years? Let me tell you, if you add up the units from those under-construction projects (The Arc, The Place, D’Pulze, Mutiara Ville, Garden Plaza. Pangaea, Shaftsbury, Serin, Domain 5, HYVE, Mirage, Verdi, V Residensi, Skypark, Lakeview, V Point), it will give you whopppppinnnng close to 8,500 units! If you are only targeting mid to low end development for student/worker rental market, you still have around 7300 units (after taking out 1200 units from Verdi and Mirage) flooding into this segment. This is of course, not including those projects that are yet to launch! What does it implicates? Oversupply? If no increase of night population from knowledge workers and new bloods in Cyberjaya, you need additional 30k students in Cyberjaya from current around 15k! Ok, new unis are coming but it may take time to build up the population. To share the supply, one needs to hope more non-students to stay in Cyberjaya. Finger crossed! You need more commercial and Human Qi to pull peoples to call Cyberjaya as their HOME. It is not so much a problem on landed as I foresee more outsiders will move in Cyberjaya landed properties due to many factors (we shall discuss it in other thread on Cyberjaya Landed Property), the HighRise market is quite a challenge!
So, guys…..TO BUY OR NOT TO BUY?
To be honest, I really like the location, concept, investor friendly packages and pricing of this development but I am the investor so I will look into the factors that can affect the demand of this development in future. Having said that, different investors have different risk appetite, also this project may out=shine the rest due to its proposition so that it will be in the top of the list for tenants/subsales buyers. So, It all depends on the reception of those factors and pricing I mentioned above. If you do invest in the end, Welcome to Cyberjaya!
p/s for any discussion for this project, you are welcome to discuss at the forum.propcafe.net



































very informative and great review!
Nice review there. Thanks for the pointing out of the mixture of office and residential units in the same tower and also the supply in other 3 years from now. I guess no one can tell the future on how cyber will grow in this 3 years time.
No doubt, the low entry and easy package make this project so affordable and “investor” friendly. Personally for own stay I would like the Technosuite. Although western sun but i believe the lanai serve the purpose for this.
For rental wise, my personal choice will be the 450sf.
Nevertheless, I am not into anything with “H” in the SOXO.
Fantastic review!
This is another detail review after Shamelin Star. Very informative and gave a very clear product mix and its propositions.
Keep up the good work!
I like the facade and concept very well, wonder why all the masterpieces are located in CBJ, but not in KL City skyline or better located area like Damansara, PJ?
putting aside legality, if the SOHO and office suites are sharing the same entrance, facilities, lobby and infact the similar layouts, what stopping the office being used as residential?
To me, its the matter of insurance and associated risk beinG used as residential.
Beside jmb may/can banned opis used as residential as the spa clearly stated “opis”.
i like the about the part mentioning room without window… if my memory serve me right. it is true that bedroom is supposed to come with window as ventilation….
no window it not a bedroom … it is more like a store to me
Fire insurance is only valid for reconstruction of the the property, not for soft furnishing and personnel inside.
For your life insurance, it doesnt matter where the accident happen whether in office or residential.
Why would jmb stopping you from sleeping inside your own property if you are not causing nausea to other residents.
In klec, some unit layouts the masterbedroom is without window as the ensuite bathroom is takin up the window….
For hotel room, even the cheap cheap like Tune Hotel, also got window.
Tats why we need a lawyer to clarify it. Becoz how jmb or unhappy office owner can react or stop you sleeping in the office is depend on the capacity under legal implication.
Also how the reaction on the subsales buyer on the office title is still unknown.
If its office (sovo/fo), meaning no bedroom n cooking facilities. However hyve brouchure show bedroom in all models, incl. Technosuite..this clearly very mislelading.
Linustw…..it is not becoz they do offer proper soho units..but only 1/3 of the total units from two blocks.
What is the distance to Shaftsbury Building for the north view units?
For any discussion for this project, you are welcome to discuss at the forum.propcafe.net
Sorry for any inconveniences caused.