16 Sierra is IOI Properties unique themed garden development located at the fringe of Puchong. Some people try to relate this area at Puchong South, but to us 16 Sierra is a Puchong wannabe. By the way, we measure Puchong ‘starts from’ and ‘ends at’ the LDP toll gates. It is in fact easier to relate 16 Sierra as Seri Kembangan, both areas are mostly leasehold, versus ‘real’ Puchong which majority freehold. We think Puchong folks would know ‘what talking you.’
Lyden is one of 16 Sierra’s residential precincts, mainly consists of 228 units double storey link houses (22×75 & 22×80) and 35 units of semi-d, zero lot banglows.
First the site plan

As you know, we are mass market, so our focus for this review will be the 22×75

and 22×80 links.

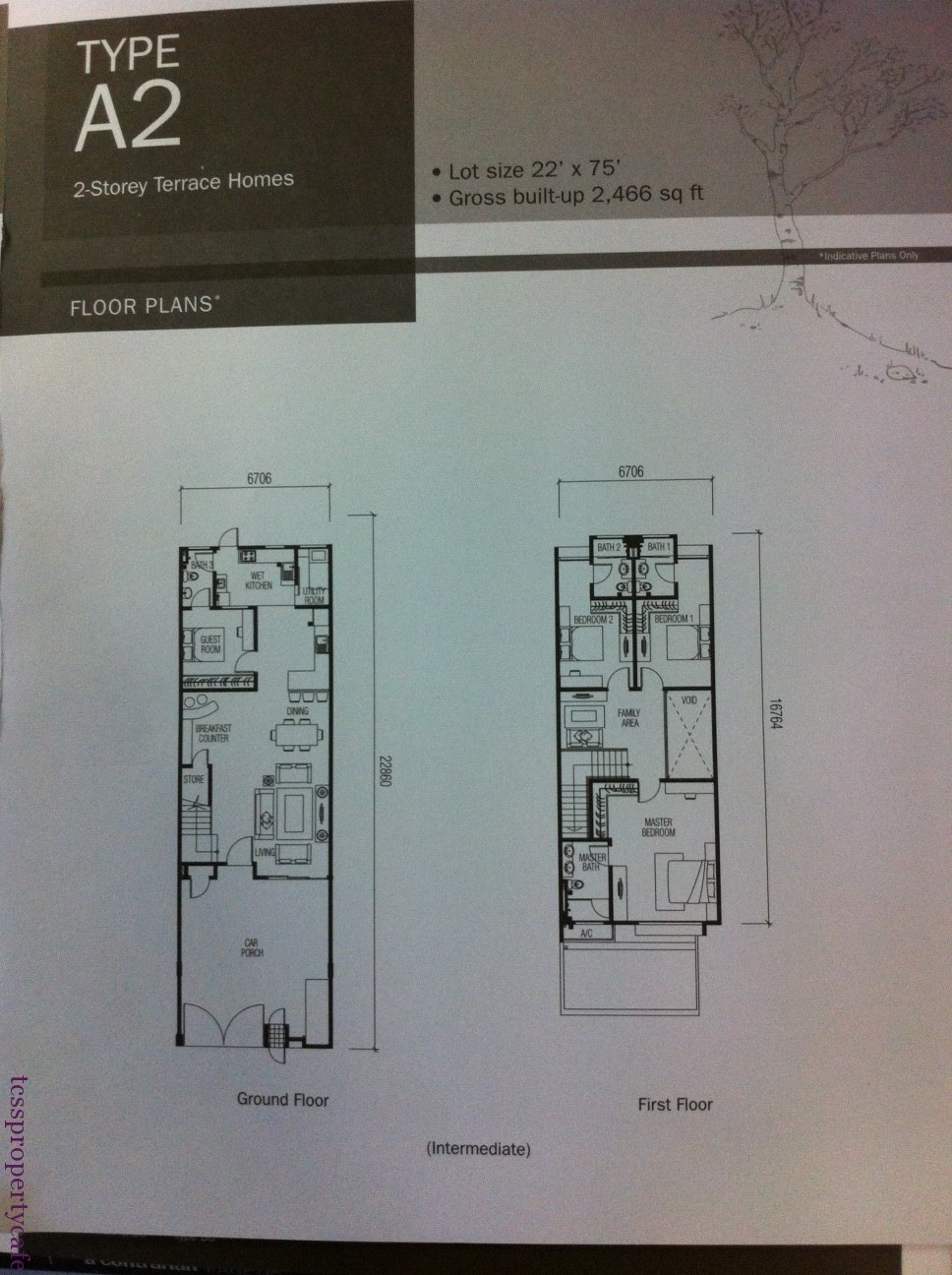
The specs
22×75 with built up of 2,466sqf and 22×80 at 2,668sqf


The Theme
The themed garden for Lyden is – Algrebra Garden, yes you heard right. We present you the ALGREBRA GARDEN.

Yes, is the soul and theme of IOI’s masterpiece@Lyden. We know you would have asked. But this tiny piece of land does not belong to the corner unit on your right!
The review
Lyden is an individual title fenced and guarded development with DMC. All terrace units are north and south orientated, therefore, most intermediate units are not exposed to west sun. Developer do not price premium on south facing units, so it is worth while choosing the south facing units.
Within Lyden, the shorter 22x75s are located at the northern which land is slightly lower compare to southern 22×80.
Each corner units are 3 storey units with slight wider dimension 24-26’and comes with generous built up of >3400-4000sqf
It is commendable that the developer actually built up show units to convince potential buyers to commit.
Most of us have 2 cars in our household, so the column free car porch is plus point.

Lyden boast a ceiling height of 12.5ft at ground floor and 11.5ft at 1st floor. The high ceiling effect do give us a very spacious feeling. You do not feel like it is 22ft terrace at all!


Each intermediate unit comes with double volume ceiling at dining area, while the 3 storey corner unit will have it on the living.

Reasonable quality of fittings given by developer, basically it is quite a reno-free unit.

Internal road looks like 40’ ft only. We guess developer wants to squeeze as much units as they can. Being IOI, they inherited the barrack building capabilities from older developments Bandar Puchong Jaya, Bandar Puteri and etc. It would be a shame if they do not show case this at 16 Sierra, and being IOI, they hardly disappoint you in this respect, there you have it row and rows of houses, with little efforts to allocate lifestyle elements such as garden/greens. 
Accessibility and amenities
16 Sierra can be easily access by LDP, SKVE, and soon a better connection to MEX. Being close to Seri Kembangan, residents at 16 Sierra can get most daily needs from Giant/Jusco, Pasar borong, at Seri Kembangan
There is also an upcoming international school within the development.
Last we check the 22×75 is priced at RM800k, while 22×80 is RM850k
This author prefers the slight longer foot print 22×80, with large work area for the kitchen.
This author thinks the asking price is prohibitive for leasehold landed at SK, and it is a ‘own stay’ property. You know what we mean.






Taiko.. Nice stuff! Clean, comprehensive and organized. From the picture, albeit the plain facade, it seems like the high ceiling and well planned design is not bad.
Is this project is gateless community? Because i did not see gate and fence of the house?
any chance for a paragon 3 review?
Why paragon3 ?
As i know all the non-bumi lot sold. anyway, do u know when the completion date with CF not?
Dear readers,
Please post all your queries related to this development to the forum
http://forum.propcafe.net/viewtopic.php?f=4&t=21
I trust the forum taikors will help on your queries
[…] the introduction of Lyden, 2 and 3-storey terrace houses, Akira 3-storey Semi-D landed hourse, La-Thea Residences […]