It has been a while since we last review on landed house, this review is a development in Sungai Long, some says its somewhere Sungai Long is Kajang, to some, this place is near to Mahkota Cheras.
To this writer, it is none of the above, this is RED BRICKS TOWN.
Welcome to the land of red bricks.
Where, the flats
The school (under-construction)
The hospital
The shoplots
And the houses, even with guard houses are in red bricks…..Red, red, red bricks…
Location
Sungai Long needs no further introduction, it is serene town located 20km from KL city centre.
It has all amenities that satisfy local day to day needs, schools, banks, fast food, petrol kiosk, hospital and college, as well as short drive robust commercial scenes at Mahkota Cheras.
It is reasonably well connected to KL with Cheras Kajang Highway, and Besraya highway.
The development
This development consists of 108 units freehold 2 Storey semi-detached homes, Built then Sell development storey semi-d development Sg Long location in SHL Consolidate Berhad, priced from RM1.238 million
The site
The site is sitting deep into Bukit Sg Long, but with walking distance the new Chinese primary school.
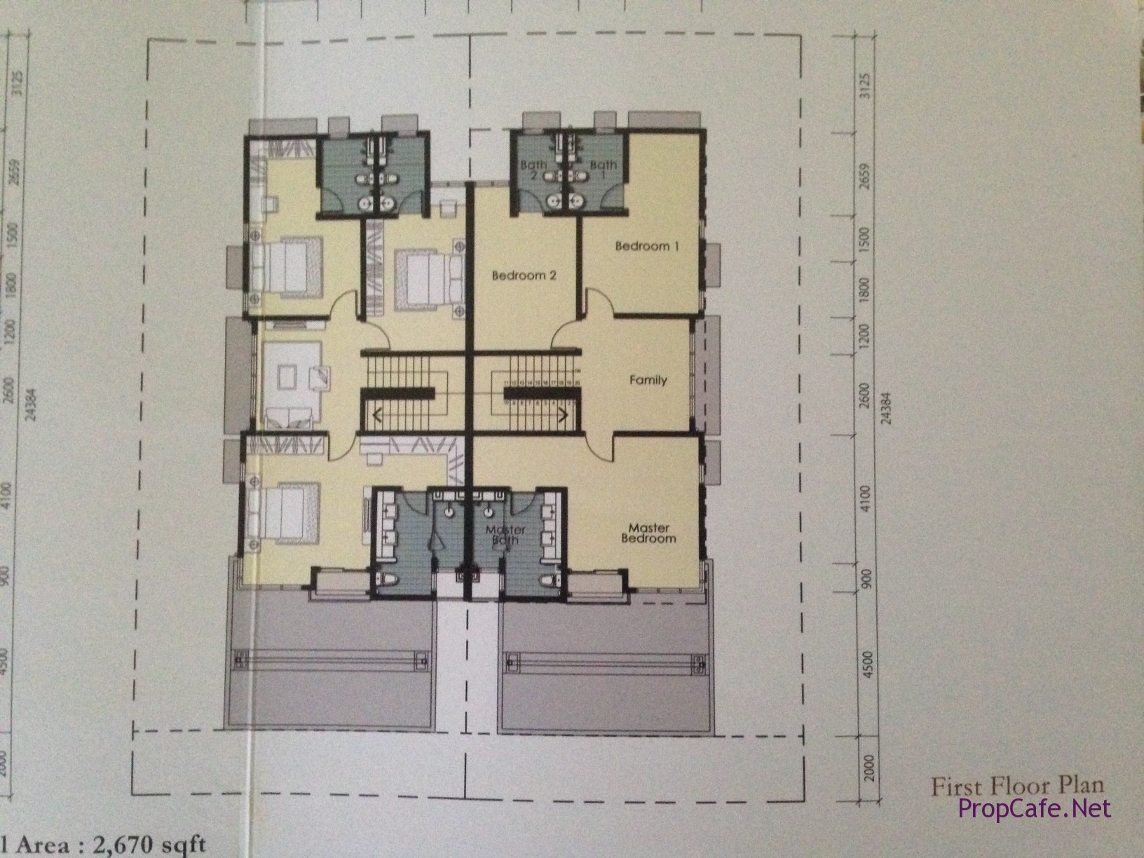
The floor and and foot print
Plot size 35×80, built-up 2670 sqft
The built up 25ft in width and 49 ft in length, 20 ft for the car porch and 10ft back and side land.
To the writer it is, this is the minimum requirement for a landed house to call a semi-d, anything smaller be deemed smaller semi-d. Never mind smaller semi-d, nowadays semi-ds are overused anyway, semi-d in the sky, every unit is a semi-d…you know who they are.
The layout are practical with no element of surprise, or creativity.
Each room is quite spacious, with guest room on ground floor.
The selling point:
Gated and guarded, 2 tier security level, linear garden with lakes, first in this part of the town.





Ground floor ceiling height boast with 11.5ft. Generous ceiling height can do magic, adding grandeur effects to your living space.
The façade
There is nothing to shout about on the façade, boring, and uninspiring. Some argue this design can stand the test of time While, it looks old now, and it certain still looks of kinda old 2-3 decade later, like an VW old bettle, 30 years on still an old bettle, see my point!
I don’t like these pillars, but can fit 2 cars.



Finishing
As this is a BTS project, WYS is WYG. Finishing is average, not fantastic.
For those require refine living standard, you may need to spend abit to make up this baby.
Final Thought
Landed project are like gems nowadays, rare and precious!
The write always admires developers who make the efforts to build on-site show units, to enable buyers to have look and feel of the project before signing the dotted lines.
What more such sizeable development that is BTS, with close to 80% completed.
It is very encouraging to see developer putting up some great efforts to have the units build up to 70-80% and then launch it to the public, effectively eliminating the most material risks for all under construction project-ABANDON project. Therefore almost Zero Abandon Risk!!
Buyers can basically cherry pick the best unit for own stay!
Last but not least some selection of actual site pictures for your viewing pleasure.




















What is the maintenance fee per month?
Any club facilities?
What is the width of artery road, mail box to maol box?
Finally what is developers offer on the purchase? Legal fee, loan fee, mot and etc?